STH
STHRAU / Paris 13







RÉHABILITATION GROUPE STHRAU
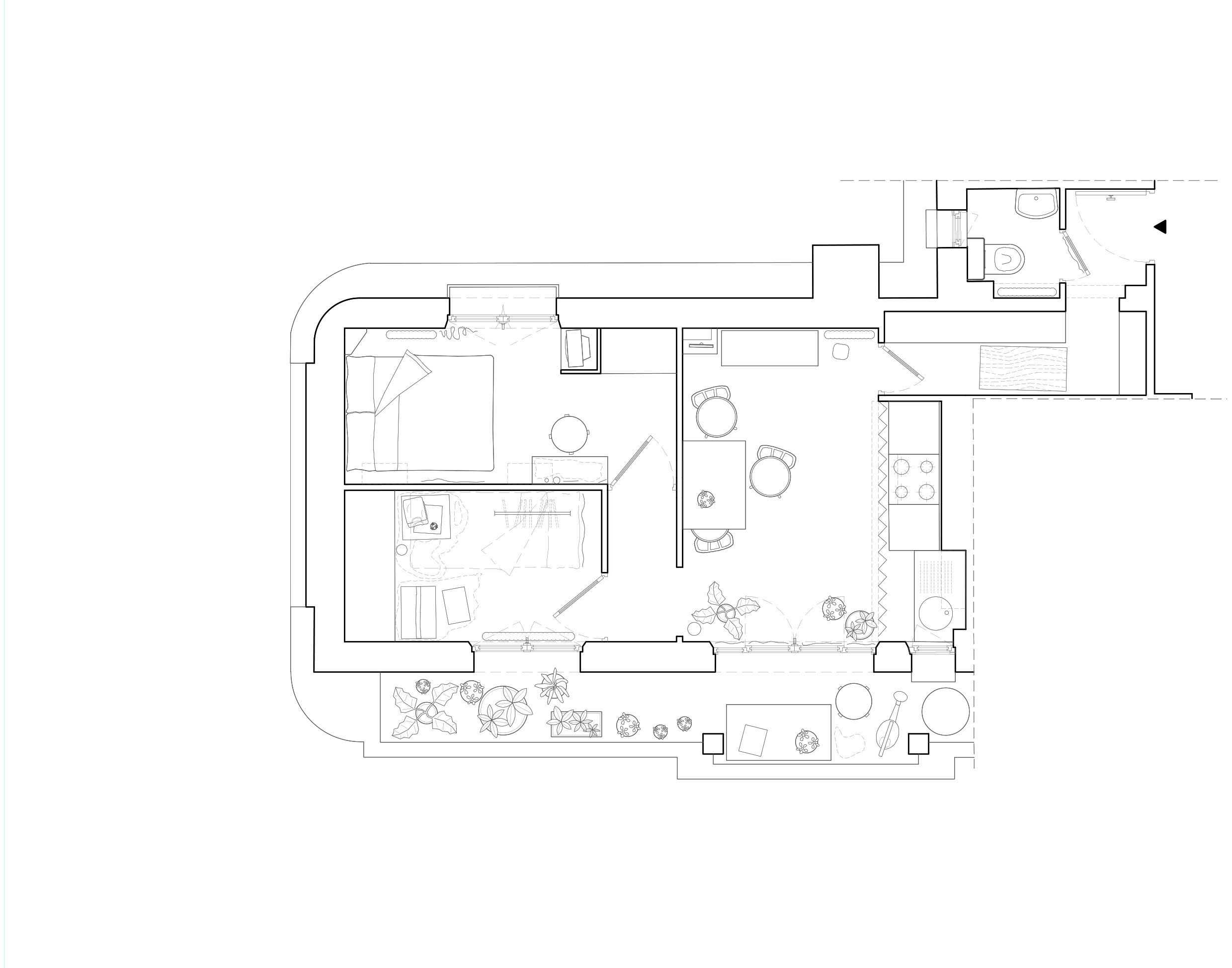
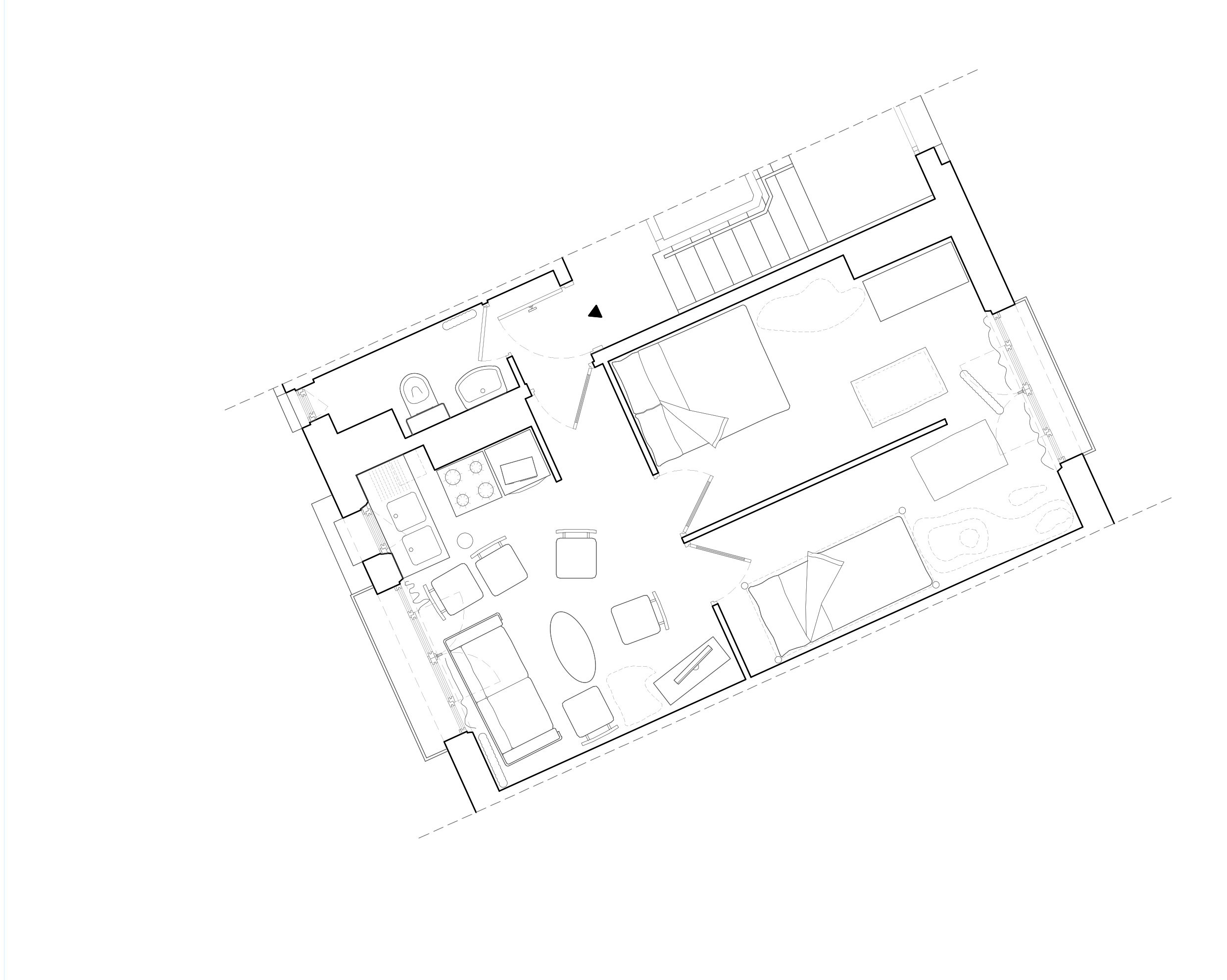
Le projet concerne la réhabilitation en milieu occupé d’une HBM de 117 logements, construit entre 1913 et 1923 et situé sur les rues Sthrau, Jean-Baptiste Renard et Nationale. L’ensemble est constitué d’une majorité de T2 de 33m2. Malgré une réhabilitation effectuée en 1986, la qualité d’habitabilité est aujourd’hui obsolète : les logements sont saturés et ne répondent aux critères de confort et de performance thermique actuels. L’objectif est de proposer un projet compatible avec le maintien des locataires dans le groupe durant les travaux et dont l’état final puisse s’adapter aux différents modes d’habiter en place dans le site. Le projet architectural s’enrichit pour ce faire d’une démarche concertative sincère, passant par la rencontre de chaque habitant et l’inventaire des différentes situations. À l’issue du diagnostic technique et social, un socle « fixe » de travaux est proposé, il pose une stratégie globale pour améliorer les performances de l’enveloppe et organiser de manière rationnelle la refonte des réseaux ; l’aménagement intérieur des logements est quant à lui variable.
La concertation est aussi l’occasion de travailler sur la qualité et les usages des espaces communs (les halls, les deux cours, la toiture, les caves)
Maître d’Ouvrage : Paris Habitat OPH
Mission : complète
Equipe : Cadence BET TCE + économie, FORS sociologue
Calendrier : en cours
Surface : 4 865 m2
Budget : 7 M€ HT
Certifications : CERQAL, NF habitat HQE Paris, label Effinergie rénovation, CEP inf. à 104 kWEP/m2 SRT/an, plan climat ville de Paris










